ID CP2534378

Vânzare Casă Nouă – Direct Proprietar – Cumpăna

ID CP2534378

98,500 € (negociabil)

Casă / Vilă cu 3 camere de vânzare
Cumpana
102 mp
2024

🏡 Vânzare Casă Nouă – Direct Proprietar – Cumpăna

📍 Zonă înaltă, fără risc de inundații | Stradă asfaltată | Teren generos | Utilităti

💰 Preț: 98.500 € | Comision 0%

📞 Contact direct: 0740 664 364

🔹 Descriere generală:

Proprietate ideală pentru o familie care caută spațiu și aer curat. Situată într-o zonă ferită de pericole naturale, această casă oferă cadrul perfect pentru un trai confortabil, în mijlocul naturii, dar aproape de oraș.

🏠 Detalii tehnice & compartimentare:

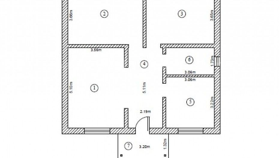
• Suprafață construită: 102 mp

• Teren: 495 mp in proprietate | Front stradal: 16 m

• Construcție solidă din BCA si beton armat, izolație exterioară, tencuială decorativă

• Acoperiș din tablă tip Lindab

• Ferestre termopan

• 3 camere spațioase, bucătărie separată, baie, hol generos, terasă

• Pod înalt (2.70 m) – ideal pentru mansardare (spațiu suplimentar locuibil)

• Locuri de parcare în curte

⚙️ Stadiu construcție & utilități:

• Casă finalizată la exterior

• Interior în stadiu “la roșu” – perfect pentru personalizare după gustul noului proprietar

• Branșamente existente: apă, curent electric, canalizare

• Gaze naturale la poartă – ușor de conectat

📜 Situație juridică:

• Teren cu cadastru actualizat

• Casă intabulată

• Toate actele pregătite pentru vânzare

🎯 Avantaje cheie:

✅ Acces facil, stradă asfaltată

✅ Toate utilitățile

✅ Ideală pentru mansardare – extindere facilă

✅ Proiect optimizat pentru trai modern

📞 Programează o vizionare: 0740 664 364

✨ Casa cu potențial real de personalizare!

#CasaCumpana #VanzareCasa #ImobiliareConstanta #InvestitieImobiliara #0Comision #CasaNoua #ProprietarDirect #CasaDeVanzare #Cumpana

Citește mai mult

  • Număr camere
    3
  • Dormitoare
    2
  • Număr bucătării
    1
  • Număr băi
    1
  • Geam la baie
    Da
  • Număr terase
    1
  • Număr locuri parcare
    2
  • Disponibilitate
    Imediat
  • Tip casă
    Individual
  • Stare interior
    Semifinisat
  • Anul finisării
    2024
  • Suprafață utilă
    102 mp
  • Suprafață construită
    102 mp
  • Suprafață teren
    495 mp
  • Suprafață terasă
    6 mp
  • Deschidere
    16 m
  • Acoperiș
    Tablă
  • Stadiu construcție
    Semifinisat
  • An construcție
    2024
  • Construcție nouă
    Da
  • Tip construcție
    BCA
  • Are pod
    Da

Facilități

Acoperiș
Apă
Apometre
Bucătărie închisă
Canalizare
Contor electric
Curent
Curte
Ferestre PVC
Gaz
Grădină proprie
Iluminat stradal
Izolație exterioară
Parcare deschisă
Străzi asfaltate
Ușă intrare metal
Vali Boldas
Manager

0740664364


Solicită chiar acum o vizionare
Telefon
Sună acum Solicită vizionare
Necesare:

Site-ul nu poate funcționa corect fără aceste cookie-uri. Vezi cookie-urile

Statistică:

Strângem statistici anonime despre voi, vizitatorii unici, pentru a vă îmbunătăți experiența dumneavoastră. Vezi cookie-urile

Marketing:

Pentru a ne promova mai eficient serviciile noastre, folosim cookies pentru a vă identifica și a vă oferi proprietăți și servicii personalizate. Vezi cookie-urile

Acest site folosește cookies, află detalii. Alege ce tipuri de cookies dorești să permitem: